Property: 05-00-BUZEN-27

Loading gallery...
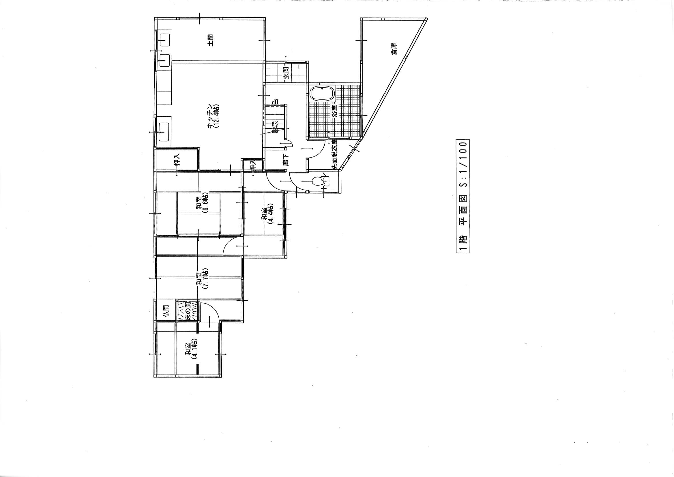
View original property page
Akiya 2.0 can assist you from purchase to renovation and investments. Contact us and our friendly staff will come back to you as soon as possible.

Please provide your contact information